252 Bloor Street EOshawa, ON L1H 3M6




Mortgage Calculator
Monthly Payment (Est.)
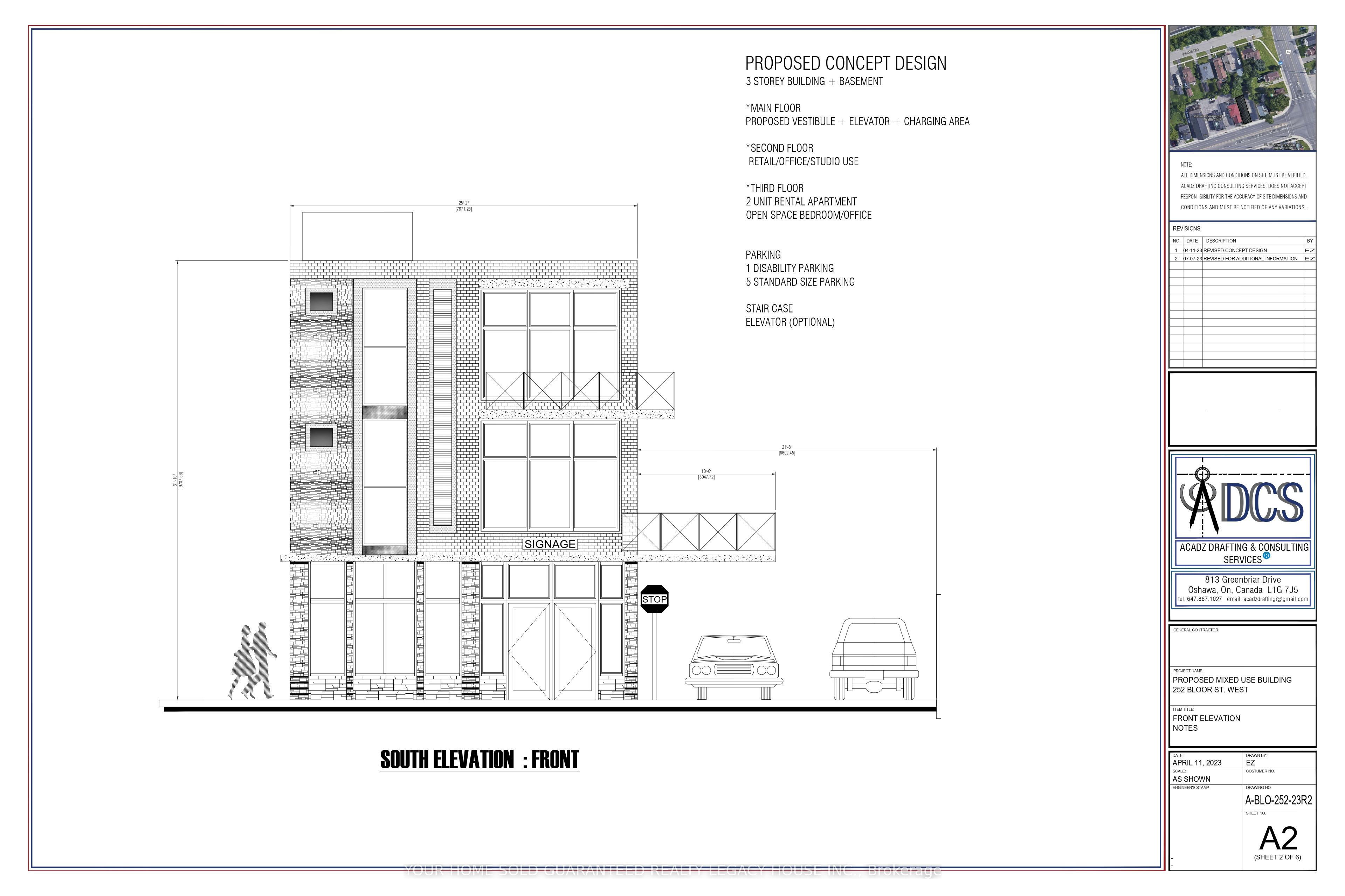
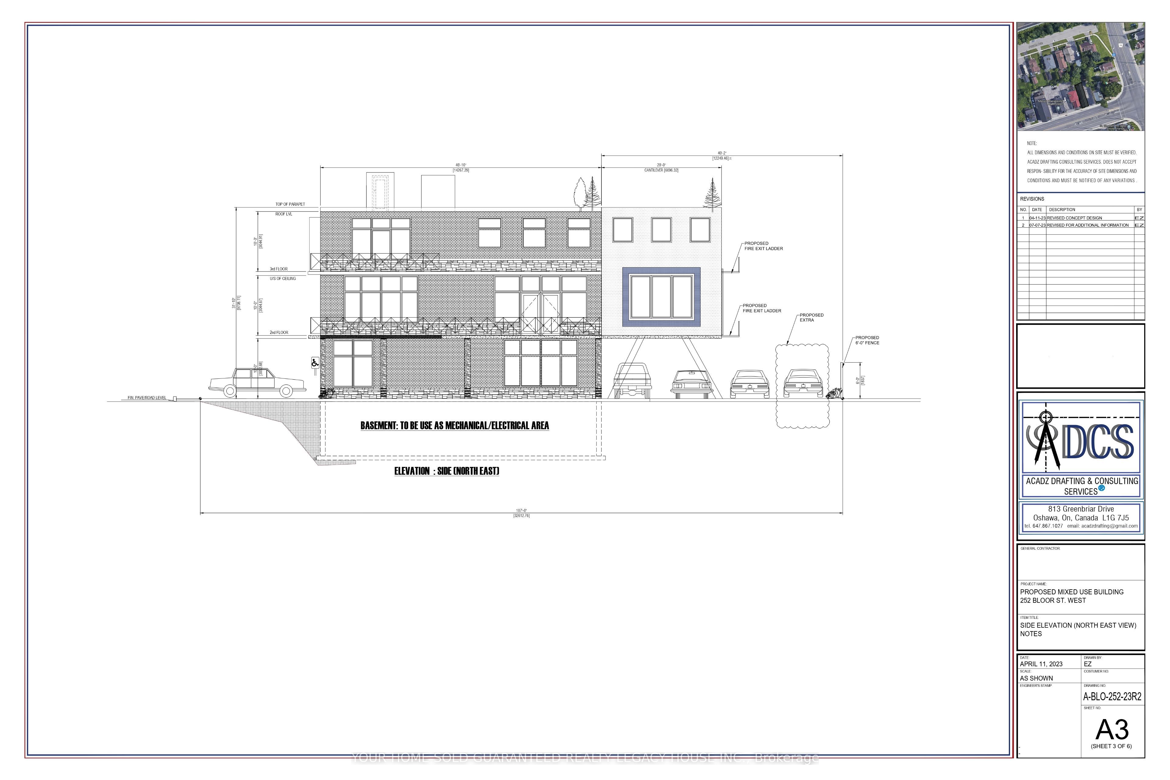
$3,376RBID HOME FOR SALE. ($739,888) Redevelopment Opportunity in Oshawa's PSC-A Zone - 252 Bloor St E Outstanding live-work or investment opportunity on a 50 x 107 ft lot within Oshawa's flexible Planned Strip Commercial (PSC-A) Zone.A proposed concept by ACADZ Drafting & Consulting (2023) envisions a 3-storey mixed-use building with basement, featuring street-level vestibule, elevator and charging area, 2nd level retail or office space, two-upper level residential apartments. The site plan includes six parking stalls and bicycle racks - ideal for developers, builders, or owner operators seeking a zoning-approved mixed use build near Bloor & Ritson, minutes to Hwy 401 and public transit.The existing 1-storey detached building (1,012 sq ft) currently offers a commercial space of approximately 600 sq ft with one washroom, and a residential portion of approximately 800 sq ft with three bedrooms and two washrooms. Currently tenanted-front commercial unit leased at $1,250/month and rear residential unit at $2,550/month - providing $3,800/month in gross income while planning future redevelopment.Property sold as is, where is.
yesterday | Listing first seen on site | |
yesterday | Listing updated with changes from the MLS® |

Listing information is provided by Participants of the Toronto Real Estate Board. VOW information is provided exclusively for personal, non-commercial use, and may not be used for any purpose other than to identify prospective properties consumers may be interested in purchasing. Information is deemed reliable but not guaranteed. Copyright 2025, Toronto Real Estate Board
Last checked 2025-10-19 01:27 PM UTC
Did you know? You can invite friends and family to your search. They can join your search, rate and discuss listings with you.