27-31 Harwood Avenue SAjax, ON L1S 2B8




Mortgage Calculator
Monthly Payment (Est.)
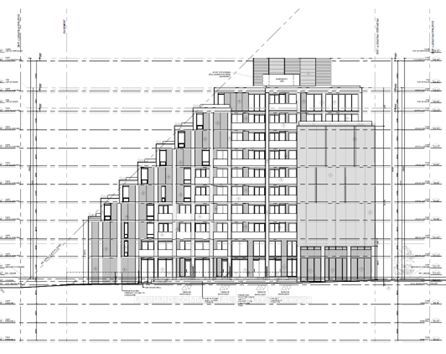
$13,687Being Sold by court appointed receiver Under Power Of Sale, "as-is, where-is" & Without Representation & Warranty. Vendor Financing Available. OPA/ZBA Approved. Final Stage Of Site Plan Approval. Mixed-Use Development Opportunity. 10 Storeys,131 Units & 123,229 GFA. Originally Designed As A Condo, This Site Would Excel As A Seniors Residence Or A Purpose-Built Apartment Complex, Benefiting From Reduced Development Charges. Located In An Established Residential Node, Just North Of Highway 401 & In Proximity To Go Station. Site Consists Of 2 Vacant 1-Storey Commercial Buildings & 1 Vacant Parcel Of Land That Can Be Readily Repositioned For Occupancy, Offering Near Term Cash Flow While Deferring Development/Construction. Water & gas have been disconnected, but electricity is still connected. Building size is estimated based on civil drawings. Property being sold based on land value & development potential. Municipal Address Includes 27, 29 & 31 Harwood Avenue S.
| 10 hours ago | Listing first seen on site | |
| 10 hours ago | Listing updated with changes from the MLS® |
Listing information is provided by Participants of the Toronto Real Estate Board. VOW information is provided exclusively for personal, non-commercial use, and may not be used for any purpose other than to identify prospective properties consumers may be interested in purchasing. Information is deemed reliable but not guaranteed. Copyright 2025, Toronto Real Estate Board
Last checked 2025-12-09 11:40 PM UTC
Did you know? You can invite friends and family to your search. They can join your search, rate and discuss listings with you.